Forum Discussion
29 Replies
- doxiluvrExplorer III don't have kids to worry about anymore, but I like the double over double bunks, rather than having to make up the dinette and sofa every night.
- Doug33ExplorerOur previous 24' TT had single bunk over bunk, which worked okay until my 2 daughters got to be older. Last year we bought a 28' TT with the double wide bunks that are in the back corner (next to bathroom), as opposed to being on the side. The kids really enjoy the wider bunks that are out of the way, and provide plenty of storage and room for them to just hang out and read or play on tablets/ computers. We just close the curtain and you can't see any of their stuff.
At my age, I have no interest in setting up tents or converting tables/couches to beds each day. I like getting to the site and being set up and relaxing within an hour. But that's me - everyone's situation is different. - AH64IDExplorer
Wishin wrote:
We have 3 kids and really like our trailer, although our priorities may be a bit different.
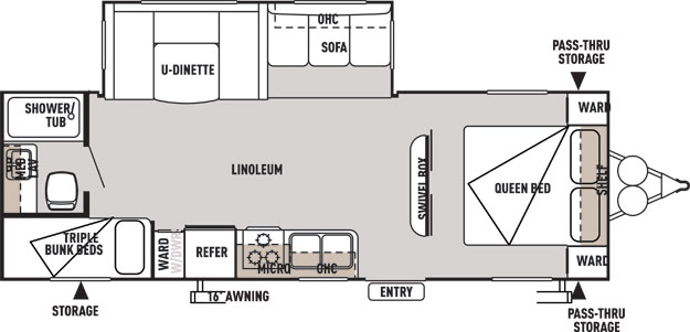
Why we bought the trailer we did, Wildwood 26TBSS
Essentially the same floor-plan as our 26BKS, but we have double bunks and storage underneath. The couch is turned to a bed nightly and it's linen lives on the top bunk during the day. It's very nice not having to take down the dinet as people can sit and eat while others sleep. - patdruryExplorerWe just traded our bunkhouse in. The kids could not stand the low ceiling height in the bunks. Went with a rear living room model. Kids love it and only takes a few minutes to make up the couch. Now we have more livable space to use during the day.
- WishinExplorerWe have 3 kids and really like our trailer, although our priorities may be a bit different.
Why we bought the trailer we did, Wildwood 26TBSS
1. Each kid has their own bed, they are fine with the smaller single beds, no complaints after having larger beds before.
2. Trailer length less than 29' from ball to spare tire
3. Very open floor plan
4. We get our own bed and private bedroom
5. The bunk beds give the kids a place to put their stuff during the day if we happen to be inside when raining.
Our last trailer had double over double beds and our neither of the older two wanted the youngest in their bed anymore. He had moved to sleeping in the cabinet/bunk over our bed. Having their own bed was more important than anything. It is easily a bigger bed than a sleeping bag they would be in out in the tent. If they get big enough to want more padding, that is easy to add. Kids are flexible, they get in and out of the bunks easily. I can see they might not work great for some adults if they are not flexible. Sleeping would be fine, getting in and out would be tougher. If we ever have an adult with us (not likely often) then we'd make the dinette into a bed as it would be a nice sized bed.
We would have gone with a bigger bunk house model as it would have given us much more storage, which would be nice, but I don't want to haul 32-33' of trailer around. Where we go the 29' trailer seems too big at times.
WILDWOOD 26TBSS
- JwmoehrleExplorer
oughtsix wrote:
The reason we upgraded from a tent to a travel trailer was for a good night sleep. People in my family that do not get a good night sleep tend to be a pain in the rear... me included! Good comfortable beds for everyone and a place one person can sleep in longer if they care to make camping much more fun.
My next trailer will probably be a toy hauler. I have seen a few toy haulers with a queen in the front and dual powered queens in the garage. We don't have quads or motorcycles but the garage will be great for bicycles and kayaks. I love the idea of a built in generator and the much larger tank capacities of toy haulers.
This is exactly what my toy hauler turned into.The garage is very versatile. - oughtsixExplorerThe reason we upgraded from a tent to a travel trailer was for a good night sleep. People in my family that do not get a good night sleep tend to be a pain in the rear... me included! Good comfortable beds for everyone and a place one person can sleep in longer if they care to make camping much more fun.
My next trailer will probably be a toy hauler. I have seen a few toy haulers with a queen in the front and dual powered queens in the garage. We don't have quads or motorcycles but the garage will be great for bicycles and kayaks. I love the idea of a built in generator and the much larger tank capacities of toy haulers. - dadmomhExplorerNot a fan of BH models and it's a good thing since we don't need one. But IF we did, the double over double or the variation shown would be the only thing we'd consider. IIRC, the width of the single bunks is only 27" and that's just not enough for a child even nearing their teens. Another benefit of the double over double is that if you have guests, the kids can have the tent and the guests can have much more comfy beds. Happy shopping.
- AH64IDExplorerAs a kid that was well over 6' at an early age and riding 15hrs to go elk hunting in the back of a '92 extra cab chevy, and sleeping on small cots and air mattresses I am not sure the kids won't like it argument is all that valid.. they are still kids.
By that age I also expect them to want to sleep outside more than inside, so the small bunks give you more room.
Just my .02 - APTExplorerWhat about this variation of double over double?

About Travel Trailer Group
44,056 PostsLatest Activity: Dec 27, 2025