evy
Apr 13, 2014Explorer
FIRST POST! Building my own campervan (E-250)
Hi everyone!
This is my very first post! here goes...
I'm selling my little two seater convertible and I'll be buying a 2011 or 2012 Ford E-250 extended cab and converting it into a Roadtrek type of campervan, ok ok I know it wont have the perfect finishing touch like the Roadtrek or pleasure way but I'll do my best to make it look good (for me).
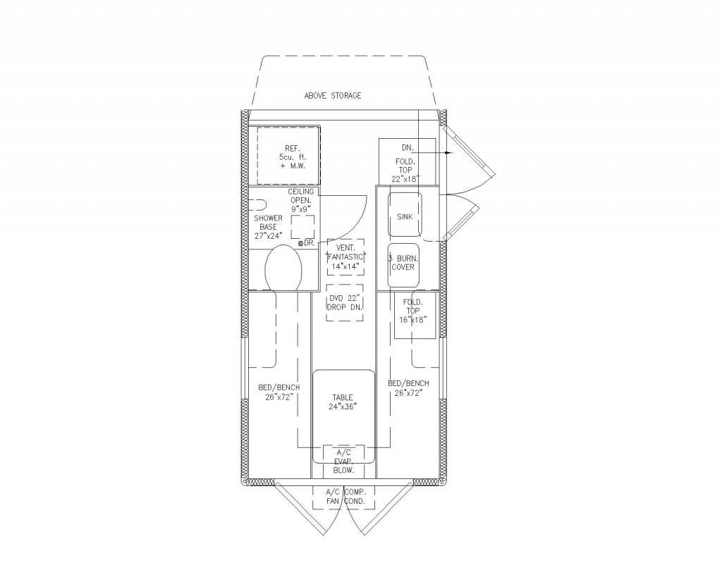
This is my first try at this so I want to get it right the first time, I work in residential architecture so I have some knowledge but not that much, I decided to draw up the plans, post them here and use the feedback from you guys to plan the whole thing as much as possible.
So here they are! please don't hesitate to let me know what you think or if you have any questions.






This is my very first post! here goes...
I'm selling my little two seater convertible and I'll be buying a 2011 or 2012 Ford E-250 extended cab and converting it into a Roadtrek type of campervan, ok ok I know it wont have the perfect finishing touch like the Roadtrek or pleasure way but I'll do my best to make it look good (for me).
This is my first try at this so I want to get it right the first time, I work in residential architecture so I have some knowledge but not that much, I decided to draw up the plans, post them here and use the feedback from you guys to plan the whole thing as much as possible.
So here they are! please don't hesitate to let me know what you think or if you have any questions.









